A Gutierrez ‘Good Turn’

Hospitality requires more than a cheery smile. Even the signs matter, when it comes to welcoming a stranger. That was my church’s problem. To the 100-year-old sanctuary (at the corner of Nassau and Vandeventer) we added a two-story education wing (accessible from the Park Place lot). It can be daunting to get from the parking lot to the pew – or to any of the other rooms used by a myriad of community groups.

A chance encounter at a Princeton Regional Chamber of Commerce event helped us find a solution. As part of the Midsummer Madness event in Palmer Squarewe had a Princeton United Methodist Church table. (It was fun!) At the end of the day, we chanced upon  Raul Gutierrez, who helped us carry our exhibits to the car.  
We got to talking about signs with Raul and his wife Claire. They had recently left the ‘big ad company’ scene to open their own shop, and Raul just happens to be a big-time wayfinding expert. Wayfinding is the technical term for ‘making signs,’ and he had recently redone the signs for the Philadelphia Airport. 
(Raul is the subject of an article in U.S. 1 Newspaper this week because he co-chairs the Plainsboro Business Partnership. As part of the Princeton Regional Chamber, the PBP is staging a free (to those attending) summer event (like the Palmer Square one) but in Plainsboro’s Fountain Park(Market Square). It’s Tuesday, June 12, 5 to 8 p.m.)

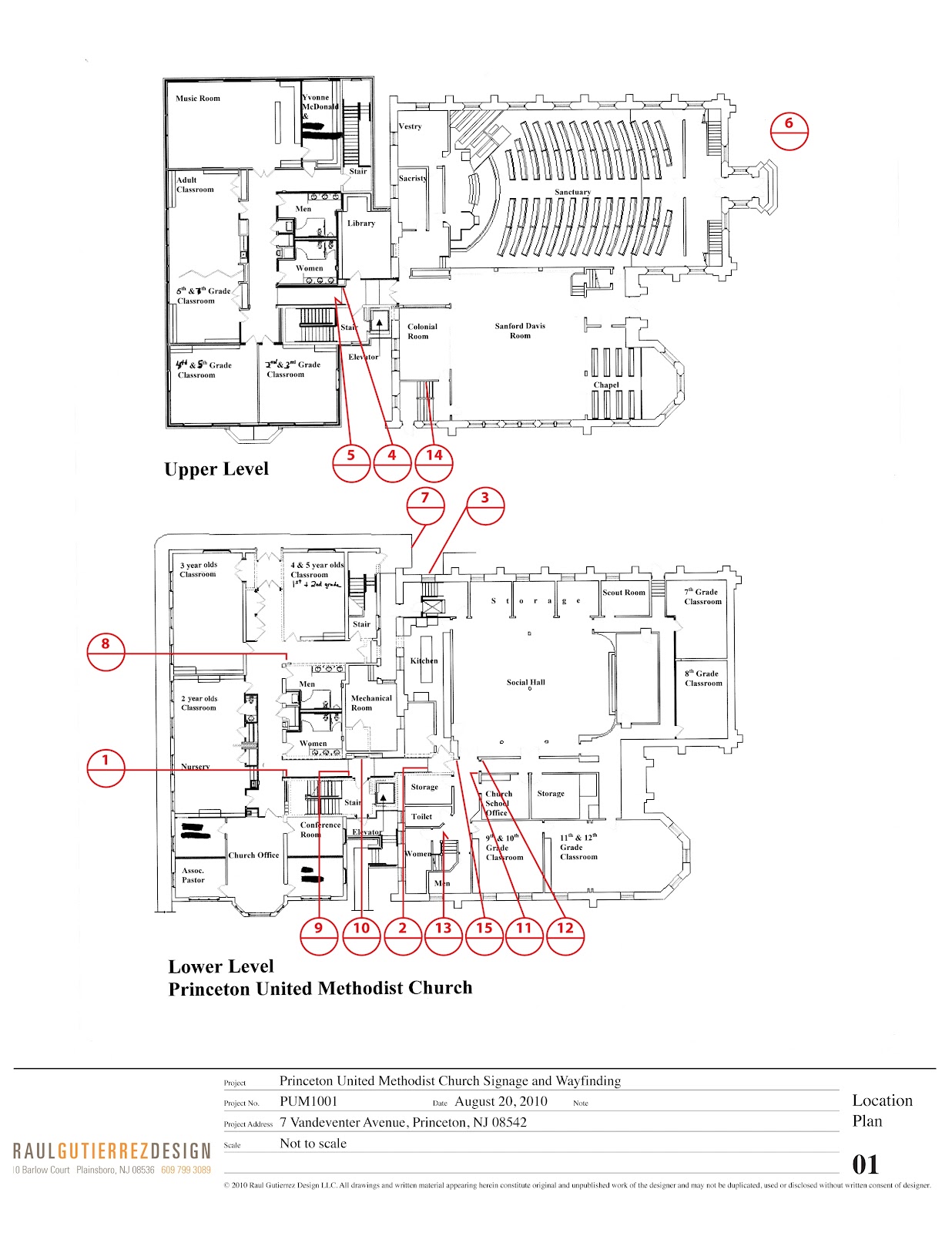
So at the Palmer Square event — Raul graciously volunteered his expertise with our ‘wayfinding dilemma.’ True to his word, he and Claire showed up with a clipboard ready to go. We began at the Park Placeentrance and worked our way through every nook and cranny while they took reams of notes. The result: a professional ‘wayfinding’ plan, showing where to put each sign and what it should say.

(In the photo on left Raul takes a picture to show where a sign should be posted for one of two wheelchair entrances.)

The Gutierrez’s pro bono efforts have made a huge difference in our ability to offer hospitality. To complete the plan, we need to commission and get permanent signs. The signs are only temporary. But, at least, the arrows now go to the right places. Thank you, Raul and Claire! This was a good example of one chamber member helping another.
P.S. The newest sign at PUMC is on the front lawn — a big banner for the Princeton Cornerstone Community Kitchen, a weekly-on-Wednesdays meal from 5 to 6:30 p.m., free to the community in an effort to build community. We’re partnering with TASK (also a chamber member) for this and had a great turnout for the first meal yesterday. Help us spread the word!

1 thought on “A Gutierrez ‘Good Turn’

Leave a comment